Ротационные пылеуловители (вихревые циклоны)
Вихревые (ротационные) пылеуловители от ООО «РОТОР СЕРВИС»
Высокоэффективное решение для сухой очистки воздуха в промышленности
ООО «РОТОР СЕРВИС» — российский производитель с глубокой экспертизой в создании систем газоочистки и аспирации. Мы проектируем, производим и поставляем надежное оборудование, ключевым элементом которого являются вихревые пылеуловители. Это доступное по цене от производителя, энергоэффективное и не требующее сложного обслуживания решение для очистки промышленных выбросов от сухого неслипающегося партикулята.

Принцип работы: сила вращения на страже чистоты
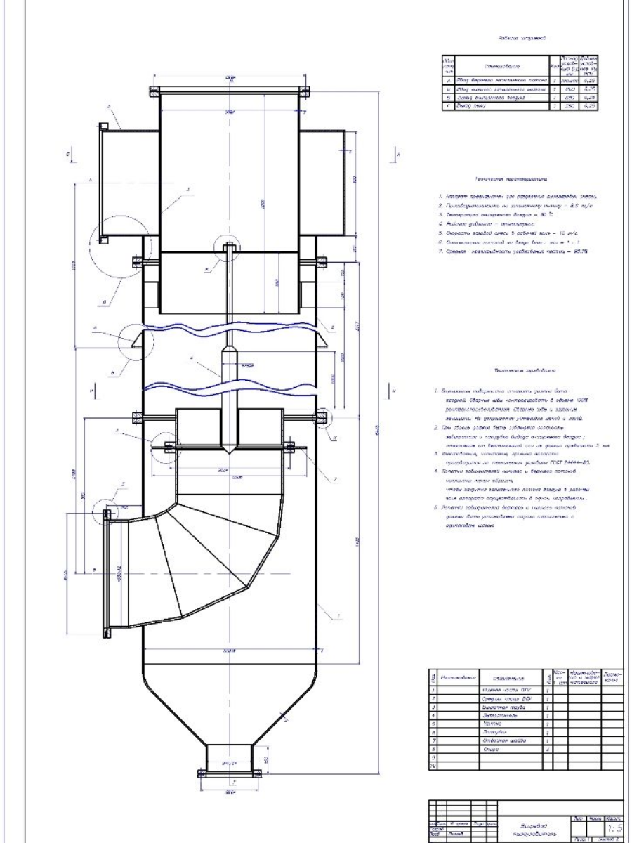
В основе работы наших циклонов лежит простой, но мощный физический принцип. Загрязненный воздушный поток, попадая в аппарат, закручивается (ротируется) по спирали. Под действием возникающей центробежной силы твердые частицы пыли, стружки, опилок отбрасываются к стенкам корпуса. Теряя скорость, они осаждаются под силой тяжести в специальный бункер-накопитель, а очищенный воздух выводится через верхнюю часть циклона. Технология не требует сменных фильтрующих элементов, что минимизирует эксплуатационные расходы.
Сферы применения:
-
Деревообработка: опил, стружка, древесная пыль и щепа.
-
Металлообработка: пыль от шлифовки, абразивная пыль, металлическая стружка.
-
Пищевая и агропромышленность: мука, крупы, лузга, солома, сахарная пудра.
-
Переработка материалов: пластиковая крошка, тальк, минеральные порошки.
-
Общепромышленная вентиляция: улавливание крупнодисперсной пыли на различных производствах.
Почему вихревые пылеуловители от «РОТОР СЕРВИС» выбирают промышленные предприятия?
-
Эффективность до 99%. Обеспечиваем высокую степень очистки для частиц размером от 10-20 мкм.
-
Надежность и долговечность. Конструкция без движущихся частей в контакте с абразивной среду гарантирует длительный срок службы.
-
Экономическая выгода. Цена от производителя, отсутствие затрат на фильтрующие материалы, низкое энергопотребление и простое обслуживание обеспечивают быструю окупаемость.
-
Адаптивность под задачи. Изготавливаем циклоны с левой или правой закруткой потока, производительностью от сотен до сотен тысяч кубометров в час.
-
Индивидуальный подход. Подбираем оптимальную конструкцию из наличия или проектируем оборудование под ваши технологические параметры, включая температуру до +400°C.
-
Полный цикл услуг. От расчета и проектирования до доставки, профессионального монтажа, пусконаладки и гарантийного обслуживания.
Технические возможности:
-
Типы: Сухие циклонные пылеуловители, батарейные мультициклоны для больших объемов.
-
Материалы: Углеродистая сталь, оцинкованная сталь, нержавеющие стали (AISI 304, 321, 316), в зависимости от требований к коррозионной и абразивной стойкости.
-
Комплектация: Полная, включая бункер-накопитель, шлюзовые затворы, фланцевые соединения. Опционально — датчики уровня пыли, системы автоматической выгрузки.
-
Исполнение: Под любые климатические условия эксплуатации.
Как заказать?
Получите профессиональную консультацию, расчет стоимости и технико-коммерческое предложение, отправив нам параметры вашей задачи или заполнив опросный лист. Мы оперативно подготовим решение, которое повысит экологичность и эффективность вашего производства.
ООО «РОТОР СЕРВИС» — чистое производство как результат точного инжиниринга.
Опции и дополнительные возможности
Стандартная комплектация наших вихревых пылеуловителей гарантирует их эффективную и надежную работу. Однако каждое производство уникально. Для максимальной адаптации оборудования под ваши конкретные технологические задачи и условия эксплуатации, ООО «РОТОР СЕРВИС» предлагает широкий спектр дополнительных опций.
1. Теплоизоляция и обогрев
-
Теплоизоляционный кожух: Для минимизации теплопотерь и предотвращения выпадения конденсата внутри аппарата при работе с горячими газами или в холодных цехах.
-
Система обогрева: Электрический или паровой обогрев нижнего конуса и бункера для исключения риска слеживания и налипания гигроскопичных материалов.
2. Материалы исполнения
-
Повышенная коррозионная стойкость: Изготовление аппарата или отдельных элементов из нержавеющих сталей (AISI 304, 321, 316L) для работы в агрессивных средах.
-
Абразивостойкая защита: Футеровка (лайнинг) внутренних поверхностей, подверженных износу, специальными материалами (полиуретан, керамика, износостойкая сталь) для работы с высокоабразивной пылью.
-
Антистатическое покрытие: Для безопасного улавливания пылей, склонных к электростатическим разрядам.
3. Системы выгрузки осадка
-
Шлюзовые затворы: Ротационные (ячеечные) или двулопастные затворы для герметичной выгрузки пыли в контейнер или на конвейер.
-
Вибро-выгрузка: Установка вибратора на бункере для бесперебойной выгрузки слеживающихся материалов.
-
Система пневмовыгрузки: Автоматическая транспортировка собранной пыли по трубопроводу в удаленный накопитель.
4. Мониторинг и автоматизация
-
Датчики уровня пыли: Для контроля заполнения бункера и автоматического запуска системы выгрузки (опорожнителя).
-
Дифманометр с выводом: Контроль перепада давления на аппарате для мониторинга его состояния и своевременного обслуживания.
-
Шкаф управления: Автоматизация работы циклона в составе технологической линии, интеграция в общую АСУ ТП предприятия.
5. Конструктивные адаптации
-
Нестандартные патрубки: Изменение диаметров, формы (круглые/прямоугольные) или расположения входного/выходного фланцев под ваши воздуховоды.
-
Камера стабилизации потока: Для повышения эффективности при неравномерном или турбулентном входном потоке.
-
Усиленная конструкция: Дополнительные ребра жесткости или изменение толщины металла для особых нагрузок или отрицательного давления.
6. Комплектация для монтажа
-
Опорная металлоконструкция: Изготовление несущей рамы или опор под конкретную высоту и способ установки.
-
Монтажный комплект: Фланцы, болты, прокладки, переходники для быстрой стыковки с вашими системами.
-
Лестницы и площадки обслуживания: Для безопасного доступа к смотровым люкам и датчикам.
7. Исполнение для особых условий
-
Взрывозащищенное исполнение (Ex): Для работы во взрывоопасных зонах (пылевоздушные смеси).
-
Арктическое или тропическое исполнение: Адаптация материалов и комплектующих под экстремальные климатические условия.
-
Крытый бункер: Защита уловленного продукта от атмосферных осадков.
8. Сопровождение проекта
-
Авторский надзор за монтажом: Выезд нашего специалиста на объект для контроля правильности установки.
-
Шеф-монтаж: Полное руководство пуско-наладочными работами силами нашей службы.
-
Техническое обучение: Инструктаж вашего персонала по принципам работы и правилам эксплуатации оборудования.
Свяжитесь с нашими инженерами, чтобы обсудить, какие опции сделают вашу систему очистки воздуха идеально соответствующей процессу.
.png)
